58 270,00 € TTC.
Nouveau produit
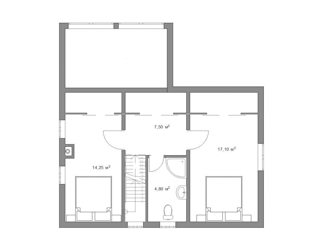
Maison en bois isolée RT2012 Chambery 125M2
Ce produit n'est plus en stock
Date de disponibilité:
Maison sur mesure
Superficie: 125m² (SHOB), (utile), rt 2012
Murs ossature bois
Panneaux de 145mm + 45mm + OSB 9-12mm
Structure: Montant ossature bois section 145x45mm, + 45x45mm, Pin ou Sapin, massif
Isolation: Laine de roche - 150mm (incorporé dans les murs)
Contreventement OSB de 9-12mm placés côté extérieur (OSB de 9-12mm côté intérieur - en option), Pare-Vapeur Utafol 110
Rail / Revêtement placo ou lambris : - non compris
Les cloisons intérieur -porteuse
Panneaux de 95-145mm + OSB 9-12mm
Cloisons intérieur: contreventement OSB de 9-12mm placés 1 côtés
Isolation: Laine de roche - 100-150mm (incorporé dans les murs)
Rail / Revêtement placo ou lambris : - non compris
Planchers - non fournis
Dalle bois - Structure plancher bois sur vide sanitaire - en option
Terasse / structure terrasse - non fournis
Toiture Charpente TRADI (Fermette - en option)
Structure: bois massif, 50-150 x 100-250mm, litonnage 35-50x35-50mm
Chevronnage 38-45x150+150mm
Isolation: Laine de roche - 300mm, Pare-Vapeur Utafol 110, Film sous toiture - UTavek 115
Rail / Revêtement placo ou lambris : - non compris
Couverture: Tuiles / bac acier: - non compris
Menuiserie
Fenêtres en PVC couleur Blanc , double vitrage 4/16/4mm, (largeur x hauteur): (couleur bois ou noir anthracite- en option + 2200euros)
Porte extérieur - PVC
Porte intérieur post-forme: 73-93cm x 200cm en option - non fournis
Volets roulant: - menuiserie coffre B - en option - non fournis
Escalier - non fournis
Kit Bardage
Bardage en Mélèze de Siberie (Pin du Nord traité classe 3 - en option)
Bardage bois: 122-140x18-20mm, chois A-B
Contre lattage: 45x20mm
Habillage des angle: 120-140x20mm
La quincaillerie de pose - fournis
Bandeaux, des débords de toiture, planche de rive
Dimensions extérieures Mur (largeur x profondeur): 900x900cm
Dimensions intérieures (largeur x profondeur): - -
Hauteur minimum : 360-400cm
Hauteur maximum : 545-610cm
Surface du toit à traiter: 112 m²
Pente: 30° (Pent toiture modifiable)
Dépassement du toit sur les côtés / pignons (façade) cm: 40-50cm (modifiable)
Nombre de pièces: - -
Visserie: quincaillerie de pose - fournis
Visserie menuiserie - fournis
Montage peut être assuré par nos partenaires: non compris
Il vous faut prévoir un moyen de levage pour poser des mur / charpente
Livraison comprise: en france métropolitaine
Moyen de dechargement a prevoir: non compris
Plus value remplacement une fenêtre fixe par une fenêtre chalet Kota ouvrants - basculantes
Maison bois isolée ref: Fréjus, RT2012 toit plat moderne
Maison ossature bois isolé avec montage 104 m2 Superficie 104 m²; Dimensions 8 x 13 m